Agence de rénovation intérieure & extérieure près de Paris 16 et à Neuilly-sur-Seine 92 Hauts-de-Seine et Les Yvelines - Page 2

Extension de maison à deux niveaux et toit terrasse, extension de 100m2, à Versailles (78000) dans les Yvelines.

À Versailles (78000), proche de Neuilly-sur-Seine, Paris 16ème et de Saint-Germain-en-Laye , nos clients nous ont sollicité pour le projet de leur vie: l'extension de leur maison ancienne. Une extension de maison de 100m2 sur deux niveaux et un toit terrasse! Le permis de construire (PC) a été ...
En savoir plus

Réussir sa rénovation d’intérieur dans les Yvelines près de Paris Ouest : Accompagnement décoratrice intérieur avec tarif

Réussir sa rénovation d’intérieur dans les Yvelines : étapes, conseils, avantages, et accompagnement professionnel adapté à votre projet.
En savoir plus

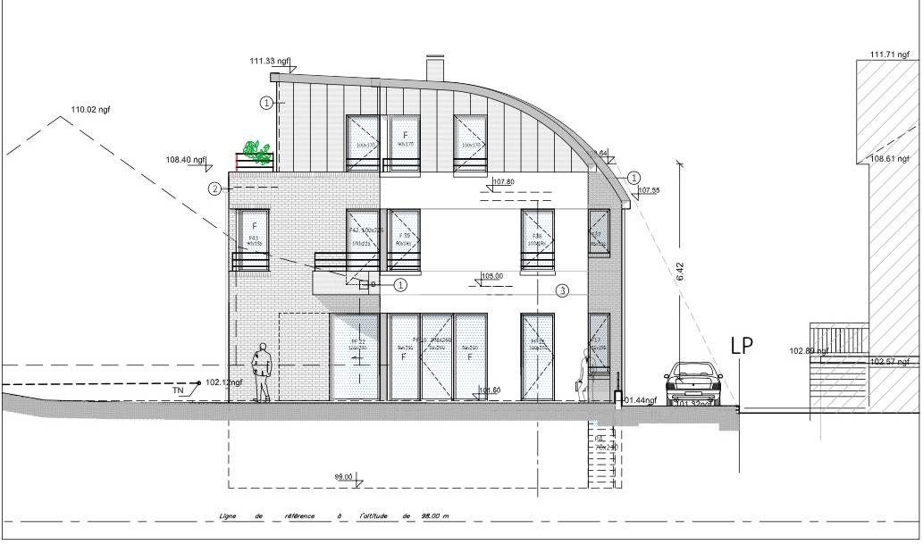
Construction de deux maisons individuelles d’architecte à Versailles 78000 avec toit en zinc arqué

Découvrez notre accompagnement complet pour la construction de deux maisons individuelles d’architecte à Versailles 78000, avec un design unique et toit en zinc arqué. Devis personnalisé au 01 70 82 49 91.
En savoir plus

Rénovation de combles à St-Germain-en-Laye de 70m2 dans une maison ancienne

Découvrez notre nouveau projet client : la rénovation de combles de 70m² dans une maison ancienne à Saint-Germain-en-Laye (78100), alliant charme et optimisation de l’espace habitable.
En savoir plus

Rénovation totale d'une cuisine dans une maison à Saint-Germain-en-Laye dans les Yvelines.

Lors de la rénovation totale de leur maison à Saint-Germain-en-Laye (78100), nos clients ont sollicité notre agence en agencement intérieur pour faire rénover totalement leur cuisine existante. Ils ont voulu une cuisine sur-mesure et à leur goût!
En savoir plus

Réalisons votre projet