1. Accueil
  2. Rénovation intérieure & extérieure
  3. Rénovation et transformation d’un appartement de 110m2 à Versailles : Nos plans 2D pour une rénovation réussie.
Retour

Rénovation et transformation d’un appartement de 110m2 à Versailles : Nos plans 2D pour une rénovation réussie.

Chez Von Euw Concept, agence d’architecture décoration intérieure, chaque projet est une nouvelle opportunité de repenser les espaces avec créativité et expertise. Actuellement, nous travaillons sur la rénovation complète d’un appartement de 110 m² à Versailles, un projet d’envergure nécessitant une refonte totale de l’aménagement intérieur.

Une étape clé : L’élaboration des plans 2D :

Pour garantir à notre client et à notre équipe d’artisans un projet fluide et bien structuré, nous avons élaboré une série de plans détaillés permettant une visualisation précise des transformations à venir. Voici les différentes étapes de notre travail :

1. Un plan de l’état existant:

Avant toute intervention, il est essentiel d’établir un plan précis de l’appartement tel qu’il est actuellement. Ce document de référence permet d’analyser la distribution et superficie des pièces, les structures porteuses et les éléments techniques en place.

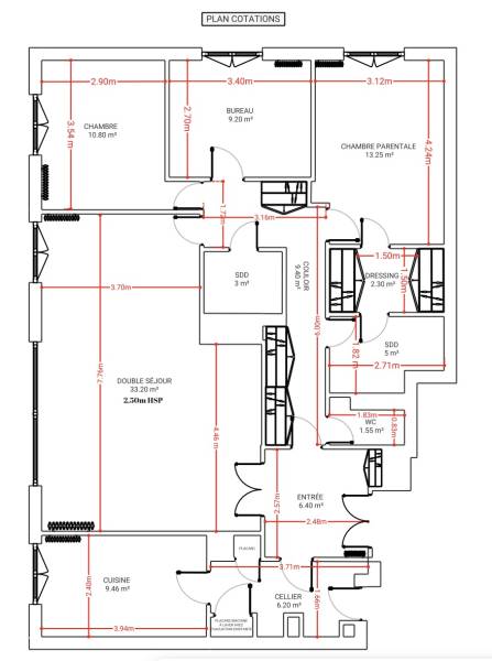
2. Un plan de cotations générales:

Chaque détail compte. Nos plans de cotations générales précisent toutes les mesures indispensables pour l’exécution des travaux : dimensions des murs, hauteurs sous plafond, ouvertures, circulations et espaces techniques.

3. Un plan de dépose-démolition:

Ce plan identifie les éléments à supprimer pour ouvrir l’espace ou le réagencer tels que: les cloisonnements obsolètes, les faux plafonds, les revêtements ou encore certaines installations électriques et sanitaires.

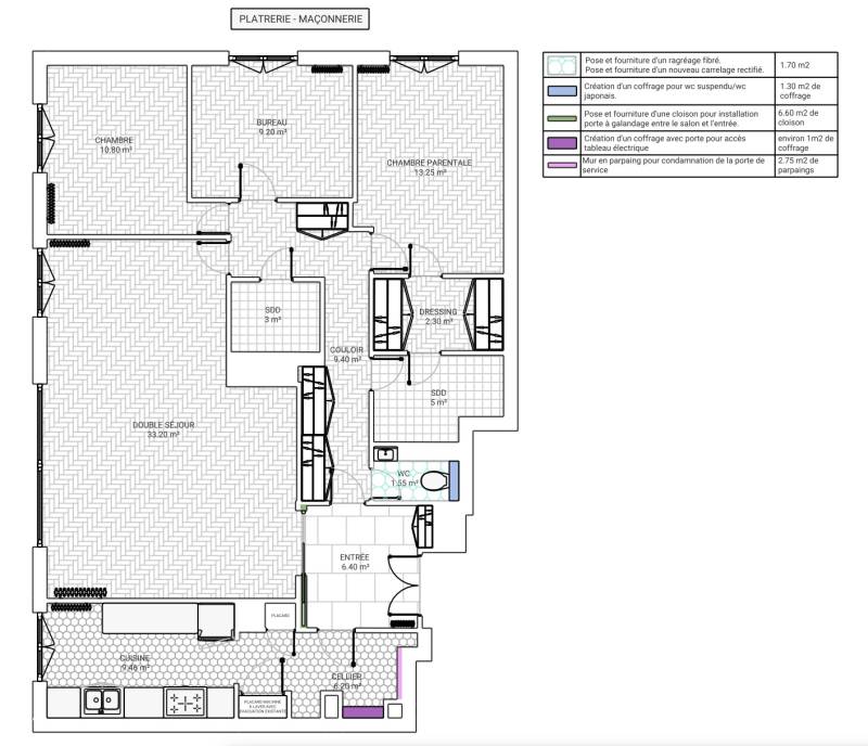
4. Un plan de plâtrerie-maçonnerie:

Après la démolition vient la reconstruction ! Ce plan détaille les nouveaux murs à ériger, les modifications structurelles et les finitions en plâtrerie, assurant un agencement optimal des espaces.

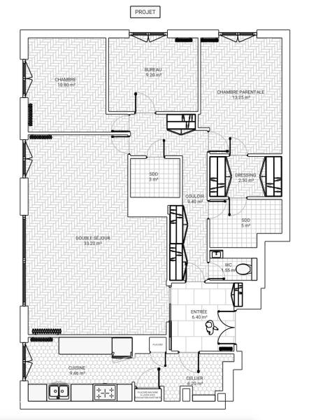
5. Un plan de l’état projeté:

Ce plan final représente l’appartement tel qu’il sera après rénovation. Il intègre les choix d’aménagement validés avec le client, les nouvelles circulations, et la mise en valeur des volumes.

Un projet qui allie esthétisme et fonctionnalité ! :

Grâce à ces plans, nous assurons une rénovation harmonieuse, alliant design, ergonomie et confort de vie. Notre agence a à cœur d’accompagner ses clients à chaque étape, en garantissant un projet fluide et parfaitement maîtrisé !

Vous souhaitez rénover votre intérieur avec une approche professionnelle et sur-mesure ? Contactez-nous pour donner vie à vos projets d’architecture et de décoration intérieure à St-Germain-en-Laye, Versailles, Neuilly-sur-Seine, Boulogne-Billancourt, et Paris16 !

Nous écrire
Besoin d'un accompagnement ?
Les champs indiqués par un astérisque (*) sont obligatoires
decoration haut standing appartement salon Paris 16ème 75016
À découvrir également
Agence architecte et décoratrice d’intérieur à Neuilly-sur-Seine 92200 – Rénovation complète d’appartements et maisons

Agence architecte et décoratrice d’intérieur à Neuilly-sur-Seine 92200 – Rénovation complète d’appartements et maisons

Agence architecte et décoratrice d’intérieur à Neuilly-sur-Seine 92200, spécialisée dans la rénovation complète d’appartements et maisons, pour transformer vos espaces en lieux fonctionnels et élégants.
En savoir plus
agence renovation et decoration interieure saint germain en laye 78

Entreprise de rénovation et de décoration intérieure avec un architecte intérieur à Saint Germain en Laye 78100

Confiez votre projet à un architecte intérieur à Saint Germain en Laye 78100. Rénovation et décoration intérieure sur mesure pour maisons et appartements.
En savoir plus
architecte plan projet extension maison les Yvelines versailles 78000

Extension de maison à deux niveaux et toit terrasse, extension de 100m2, à Versailles (78000) dans les Yvelines.

À Versailles (78000), proche de Neuilly-sur-Seine, Paris 16ème et de Saint-Germain-en-Laye , nos clients nous ont sollicité pour le projet de leur vie: l'extension de leur maison ancienne. Une extension de maison de 100m2 sur deux niveaux et un toit terrasse! Le permis de construire (PC) a été ...
En savoir plus

Réalisons votre projet