Agence d’aménagement et décoration d’intérieur à Marly-le-Roi & Île-de-France (75, 78, 92) - Page 2

Dessins techniques d'architecte d'intérieur: un projet haut de gamme sur-mesure d'une maison de 500m2 à Neuilly-sur-Seine (92200)

Un projet clefs en main pour nos clients: la rénovation et l’aménagement intérieur de leur maison de 500m² à Neuilly-sur-Seine, l'un des quartiers les plus prestigieux d'Île-de-France.
En savoir plus

Une bibliothèque sur mesure : Un salon fonctionnel et élégant dans un appartement T3 de 70m² à St Germain en Laye proche Paris 75

Une bibliothèque sur mesure : L'atout design d'un appartement T3 de 70m² à St Germain en Laye 78100 proche de Paris 75.
En savoir plus

Projet de rénovation haut standing à la décoration intérieure de luxe d'une maison rénovée de 500m2 par un architecte à Neuilly-sur-Seine 92200

Notre agence de Saint-Germain-en-Laye vous présente sa dernière réalisation en décoration intérieure haut-de-gamme, celle d’une maison ancienne de 500m2 à Neuilly-sur-Seine 92200, totalement rénovée en amont de façon contemporaine par l’un de nos architectes partenaires.
En savoir plus

Décoration et agencement d'un bureau moderne et élégant de 20m2 à Neuilly-sur-Seine 92200 dans les Hauts-de-Seine

Notre client a fait appel à notre agence de décoration intérieure de Saint-Germain-en-Laye (78100) afin de décorer et d'agencer son bureau de 20m2 à Neuilly-sur-Seine 92200 dans un style moderne, élégant et masculin. Actuellement sans décoration particulière, il nous a fait part de ses envies et ...
En savoir plus

Optimisez un petit espace avec un architecte en décoration intérieure à Paris, Saint-Germain-en-Laye, Versailles ou proche Neuilly-sur-Seine !

Vous venez d’acheter ou de louer un studio, un T2 de 40m² ou moins ?  Vous souhaitez un intérieur fonctionnel, esthétique et parfaitement agencé ?  Notre architecte décorateur d'intérieur, spécialisé dans l’aménagement de petits espaces tels que les studios, les petits T2, vous aide à optimiser ...
En savoir plus

Nouvelle réalisation: Un bar à vins traditionnel et rustique à deux pas de Neuilly-sur-Seine dans les Hauts-de-Seine

Pour apporter le plus possible un esprit traditionnel et rustique à ce bar à vins près de Neuilly-sur-Seine dans les Hauts-de-Seine (92), nous avons privilégié l'utilisation de matériaux naturels dans ce design intérieur sur mesure tels que:Le bois: Mise en valeur des sous-bassement avec des panne...
En savoir plus
Heritage parisien architecte d'intérieur a Paris

Décorateur et Architecte d'Intérieur à Neuilly sur Seine dans les Hauts de Seine.

Architecte d'intérieur et décoratrice à Neuilly-sur-Seine (92200) et sur Paris (75), j’accompagne, les particuliers comme les professionnels, de la conception à la réalisation de votre projet, dans l’agencement et la décoration de leurs appartements, de leurs maisons et/ou de leurs espaces de travail.
En savoir plus

Design intérieur moderne et élégant d'un appartement neuf T3 avec une cuisine américaine à Saint-Germain-en-Laye (78100)

Les clients, propriétaires d'un appartement T3 à St-Germain-en-Laye (78100), ont fait appel à notre agence de décoration intérieure afin d'agencer et d'aménager leur appartement 3 pièces avec un design intérieur moderne et élégant.Il s'agit d'un appartement neuf qui se compose: d'une entrée où ...
En savoir plus
Decoratrice et architecte interieur

Espace Aménagement Décoration à Neuilly sur Seine dans les Hauts de Seine,

Bienvenue sur le site de l’agence Von Euw CONCEPT & TRAVAUX par Flora Von Euw, architecte et décoratrice d’intérieur.
En savoir plus

Aménagement intérieur sur mesure de projets de rénovation de haut standing à Neuilly-sur-Seine, dans les Hauts-de-Seine (92200)

Vous êtes à la recherche d'un architecte d'intérieur haut de gamme pour réaliser votre projet d'aménagement intérieur sur mesure à Neuilly-sur-Seine (92200) ou dans les Hauts-de-Seine (92) ?
En savoir plus

AVANT/APRÈS - Rénovation et proposition de décoration pour chambres étudiantes dans un appartement de 70m2 à Saint-Germain-en-Laye (78100) dans les Yvelines.

Pour notre client propriétaire d'un appartement T4 à Saint-Germain-en-Laye (78100) dans les Yvelines, d'environ 70m2, nous avons travaillé sur une mise en décoration simple des chambres étudiantes et de la pièce de vie avec cuisine ouverte. Cet appartement se compose de 4 chambres étudiantes, de ...
En savoir plus

AVANT/APRÈS - Rénovation et décoration intérieure de chambres étudiantes dans un appartement T7 de 115m2 dans Paris 16ème, 75016.

Notre client propriétaire nous a de nouveau fait confiance pour la rénovation et la mise en décoration de son deuxième appartement T7, d'environ 115m2, destiné à la location pour jeunes étudiants à Paris 16ème, 75016. Tout comme le premier appartement de 70m2 proposant 4 chambres, nous avons dû t...
En savoir plus

Agencement intérieur et plan 3d d'un appartement moderne de 115 m2 à Paris 16ème, 75016.

Réalisation de plan 3d et d'aménagement intérieur d'un appartement de 115m2 à Paris 16ème (75016) avec 6 chambres et une pièce de vie (salon, salle à manger et cuisine). Cet appartement est destiné à la location étudiante.  Le propriétaire a fait confiance à notre agence spécialiste en agencem...
En savoir plus

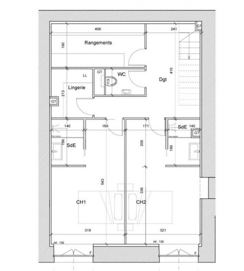
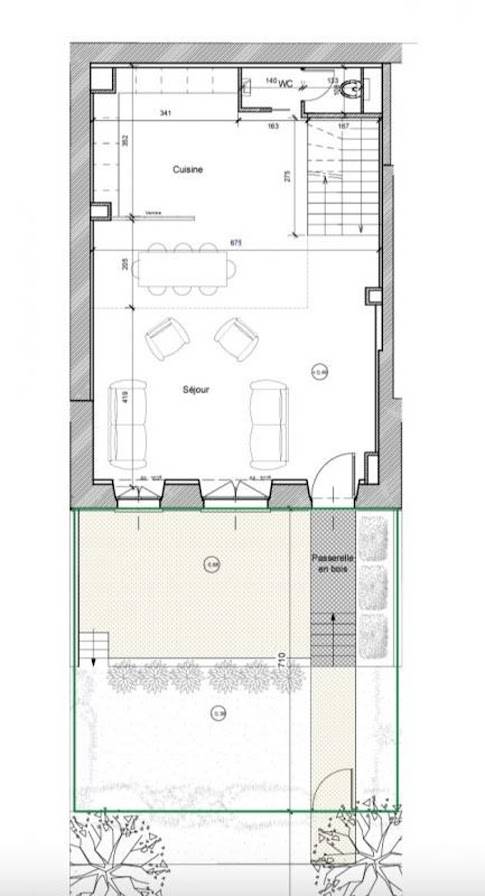
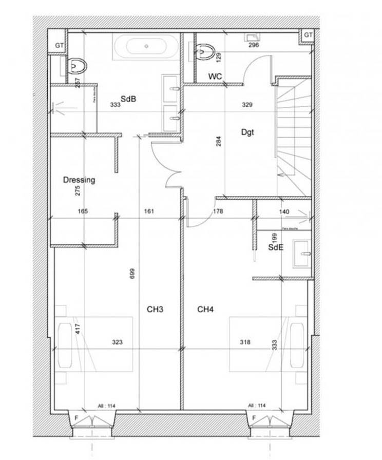
Projet d'aménagement d'un appartement en Triplex moderne de 8 pièces à Saint-Germain-en-Laye 78100

Projet actuellement en cours de réalisation: L'aménagement total d'un appartement sur 3 niveaux avec mezzanine et un jardin exterieur. L'agencement total de ce triplex à Saint-Germain-en-Laye (78100), dans les Yvelines (78), est en cours. La mission "Gold Concept" choisie par nos clients co...
En savoir plus

Aménagement intérieur d'une entrée d'appartement et d'une chambre parentale à Neuilly-sur-Seine (92200) dans les Hauts-de-Seine.

Nos clients M. et Mme M. à Neuilly-sur-Seine (92200), propriétaires d'un appartement T3 avec une magnifique vue sur la Tour Eiffel depuis leur chambre parentale ont fait appel à notre agence d'agencement et de décoration interieure pour être accompagnés sur l'aménagement intérieur de leur entrée e...
En savoir plus

Aménagement intérieur par un architecte d'intérieur d'un appartement de 70m2 avec 4 chambres pour location étudiante à Saint-Germain-en-Laye, 78100

Nouveau projet pour notre agence Von Euw Concept & Travaux, agence spécialisée en agencement et décoration intérieure d'appartement ou de maison dans les Yvelines (78), à St-Germain-en-Laye 78100, à Neuilly-sur-Seine (92200), Paris 16ème (75016) ou Versailles (78000). Notre client souhait...
En savoir plus

Projet de décoration intérieure totale dans un appartement à Neuilly-sur-Seine (92200) dans les Hauts de Seine (92)

Projet PITOIS: réalisation complète d’un agencement d'espace et d'une proposition de décoration intérieure pour un appartement à Neuilly-sur-Seine (92200), dans les Hauts-de-Seine. Les pièces concernées par l'agencement et la décoration d'intérieur sont: la pièce de vie principale qui se compo...
En savoir plus

Réalisons votre projet